建築図面トレースセンターは、東京に本社を構えるエムズクリップが手がけるCADトレース代行サービスです。ここでは、建築図面トレースセンターのサービスの特徴や対応図面などについてご紹介します。

建築図面トレースセンターは、名前にもあるとおり建築図面全般に幅広く対応しています。受注実績をみても、設計事務所や建設会社が大半を占めており、品質面において期待ができるでしょう。トレース枚数は1枚から対応。気軽に利用しやすいサービスも魅力です。
CADトレースを担当するのは、建築事務所で数多くの設計を手がけた経験をもつベテランスタッフです。実務経験があるからこそできる、細かな所まで目の行き届いたCADトレースサービスも建築図面トレースセンターの強みと言えます。
サービス提供できるのは、CADトレースだけではありません。建築図面や設備図面の新規作成も代行することが可能です。また、積算業務にも対応しており、金抜き明細書などの作成にも応じることができます。図面作成もCADトレースと同様、1枚から対応しています。
CADトレース代行業者の選定で失敗しないためには、価格やサービスの内容はもちろん、実績をチェックすることも重要です。当サイトでは、数ある業者の中から実績のある3社をピックアップしてご紹介しています。各社の特徴や対応図面、料金も一覧で紹介していますので、ぜひ合わせて参考にして下さい。




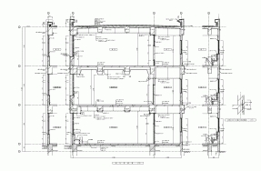
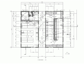
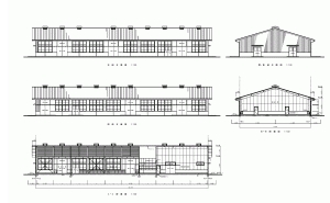
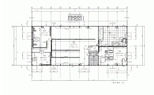
画像引用元:建築図面トレースセンター(http://trace.e-zumen.jp/tech.html)
公式ホームページに記載がありませんでした。
料金に関しては見積もり対応となっています。詳細については直接お問い合わせください。

国土交通省のCAD製図基準に則り、連携の取りやすさ・再利用性が◎。大規模現場での設計・施工ミス対策に適切。
100枚程度を1か月ほどでトレース可能。大量発注の場合はボリュームディスカウントもあり。

現地調査をしたうえで正確なCAD化・作図・図面修正に対応。
紛失や破損により、そもそも図面がない建物でもデジタル図面を作成でき、既存の古い建造物や施設改修に適する。

平面の図面から、3Dパース・3Dモデル化への対応が可能。
3D CINEMA 4Dを使用して質感までシミュレーションでき、複雑な形状・デザインの建築物でも完成イメージがわかりやすい。
【選定基準】CADトレース代行、図面電子化とGoogleSEO検索100位で公式サイトがヒットした会社29社から選定(2024年2月10日時点)。
・rakuCADtrace®︎…実績が明記されている会社のなかで、実績数No.1(2024年2月26日時点)で最短翌日に納品できる会社
・LAN-DAN CADトレース…実績が明記されている会社のなかで、現地調査からトレースしてくれる唯一の会社
・近江企画…実績が明記されている会社のなかで、3Dへの対応ができる唯一の会社