LAN-DAN CADトレースは、福岡の一級建築士事務所・欒団株式会社が手がけるCADトレースサービスです。ここでは、LAN-DAN CADトレースのCADトレース代行の特徴などについてご紹介します。

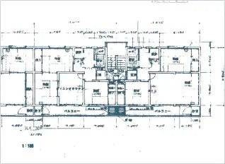
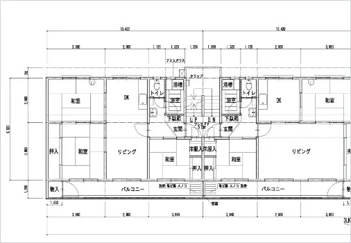
LAN-DAN CADトレースは、10年以上のCADトレースの経験があり、これまでに手がけた図面の枚数は1万枚以上(公式HPに期間の記載なし。2024年2月10日時点で確認できた情報)。建設会社やNEXCOが顧客の大半を占めており、建築や土木、設備関連の作図を得意としているようです。
参照元:LAN-DAN CADトレース公式HP(https://lan-dan.co.jp/cad/#reason)
手書き図面のCADトレースはもちろん、レイヤーの振り分け、朱書き図面の修正、新規図面作成にも対応が可能。図面に関する煩雑な業務を丸ごと委託することができます。また、品質を重視して、作図はすべて国内で実施。納品前に必ず検品した上で完成品を提供してくれます。
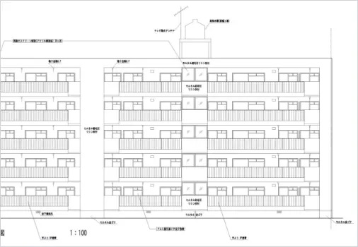
CADトレースだけでなく、現地調査まで代行できるのもLAN-DAN CADの強みです。図面を預けるだけで、実測や写真撮影など行った上で作図してくれます。紛失等で図面がない場合でも、現地調査と新規図面作成をまとめて依頼することが可能です。
CADトレース代行業者の選定で失敗しないためには、価格やサービスの内容はもちろん、実績をチェックすることも重要です。当サイトでは、数ある業者の中から実績のある3社をピックアップしてご紹介しています。各社の特徴や対応図面、料金も一覧で紹介していますので、ぜひ合わせて参考にして下さい。






ファイル形式
| 図面種別 | 価格目安(税不明・A1~A3サイズ) |
|---|---|
| 建築関連 | 6,000円~35,000円/枚 |
| 土木関連 | 6,000円~35,000円/枚 |
| 電気・衛生設備関連 | 6,000円~35,000円/枚 |
※実際の価格は個別の案件内容によって変動します。
※CADトレース・作図業務は諸経費込みの価格です。
参照元:LAN-DAN CADトレース公式(https://lan-dan.co.jp/cad/#price)
現地調査付きプランで自社施設の図面作成を依頼しました。一部の建物や部屋は図面を紛失していましたが、ランダンに現地調査から対応してもらい、図面を紛失していた建物や部屋も含めて、全て最新の状態でCAD化を行いました。 制作にあたり、図面の仕様など当社の要望をヒアリングの上、納品後の図面の管理や更新作業を円滑に進められるような内容でご提案を頂きました。 現地調査も安全面や衛生面に配慮されており、安心してお願いすることができました。 納品後も改修・補修工事を実施した箇所の更新作業や現地調査を依頼しています。
引用元:LAN-DAN CADトレース公式(https://lan-dan.co.jp/cad/#voice)
元々、別の業者へ依頼していましたが、社内の別部署からランダンの紹介があり、検討に至りました。大量の図面をCAD化・既存データの修正をする必要があり、当社の希望条件にあった仕様・作図体制のご提案を行ってもらえたので、決め手となりました。 仕上がった図面はとても綺麗で、文字化けやデータ不備も一切なく、CADデータを使用する現場からも満足の声が上がっています。 また他社ではCADデータだけで送られてくるのに比べ、事前にヒアリングがあり、PDFデータもセットで納品して頂き、社内でのPDF化の手間を省いてくださいました。
引用元:LAN-DAN CADトレース公式(https://lan-dan.co.jp/cad/#voice)

国土交通省のCAD製図基準に則り、連携の取りやすさ・再利用性が◎。大規模現場での設計・施工ミス対策に適切。
100枚程度を1か月ほどでトレース可能。大量発注の場合はボリュームディスカウントもあり。

現地調査をしたうえで正確なCAD化・作図・図面修正に対応。
紛失や破損により、そもそも図面がない建物でもデジタル図面を作成でき、既存の古い建造物や施設改修に適する。

平面の図面から、3Dパース・3Dモデル化への対応が可能。
3D CINEMA 4Dを使用して質感までシミュレーションでき、複雑な形状・デザインの建築物でも完成イメージがわかりやすい。
【選定基準】CADトレース代行、図面電子化とGoogleSEO検索100位で公式サイトがヒットした会社29社から選定(2024年2月10日時点)。
・rakuCADtrace®︎…実績が明記されている会社のなかで、実績数No.1(2024年2月26日時点)で最短翌日に納品できる会社
・LAN-DAN CADトレース…実績が明記されている会社のなかで、現地調査からトレースしてくれる唯一の会社
・近江企画…実績が明記されている会社のなかで、3Dへの対応ができる唯一の会社